Hytte Trysil 1 og 2

Dette er romslige og moderne hytter som har rikelig med plass for hele familien. Disse hyttene inneholder mange funksjonelle rom og flotte sosiale soner.

  • BRA 141,2
  • P-rom
  • 3

Trysil 1 og Trysil 2 er nesten identiske i design, men Trysil 1 har en noe lavere hems og derfor en lavere mønehøyde enn Trysil 2. Hvis mønehøyden til Trysil 2 ikke er i samsvar med reguleringsbestemmelsene i ditt ønskede hytteområde, kan Trysil 1 være det perfekte valget for deg. Trysil 1 har en mønehøyde på 5,0 meter, noe som gjør den passende for flere hyttekommuner.

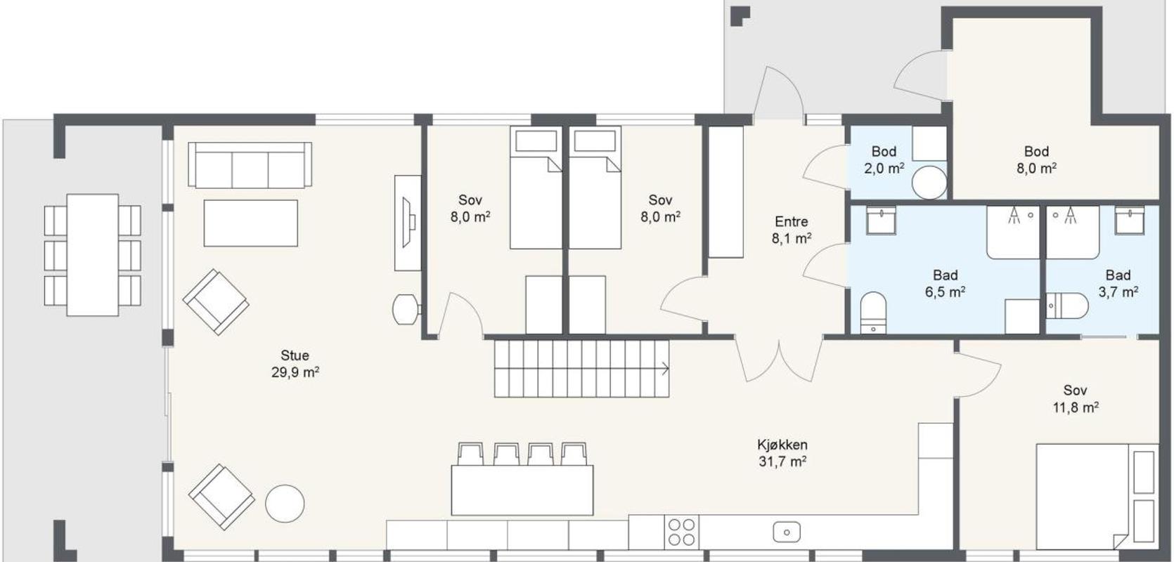
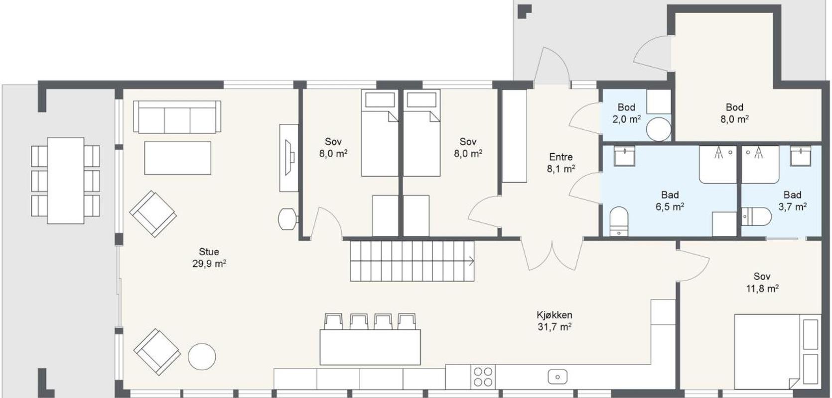
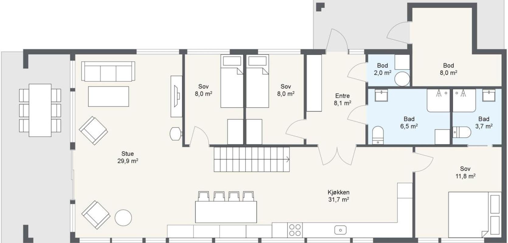
Stor familiehytte med god lagringsplass

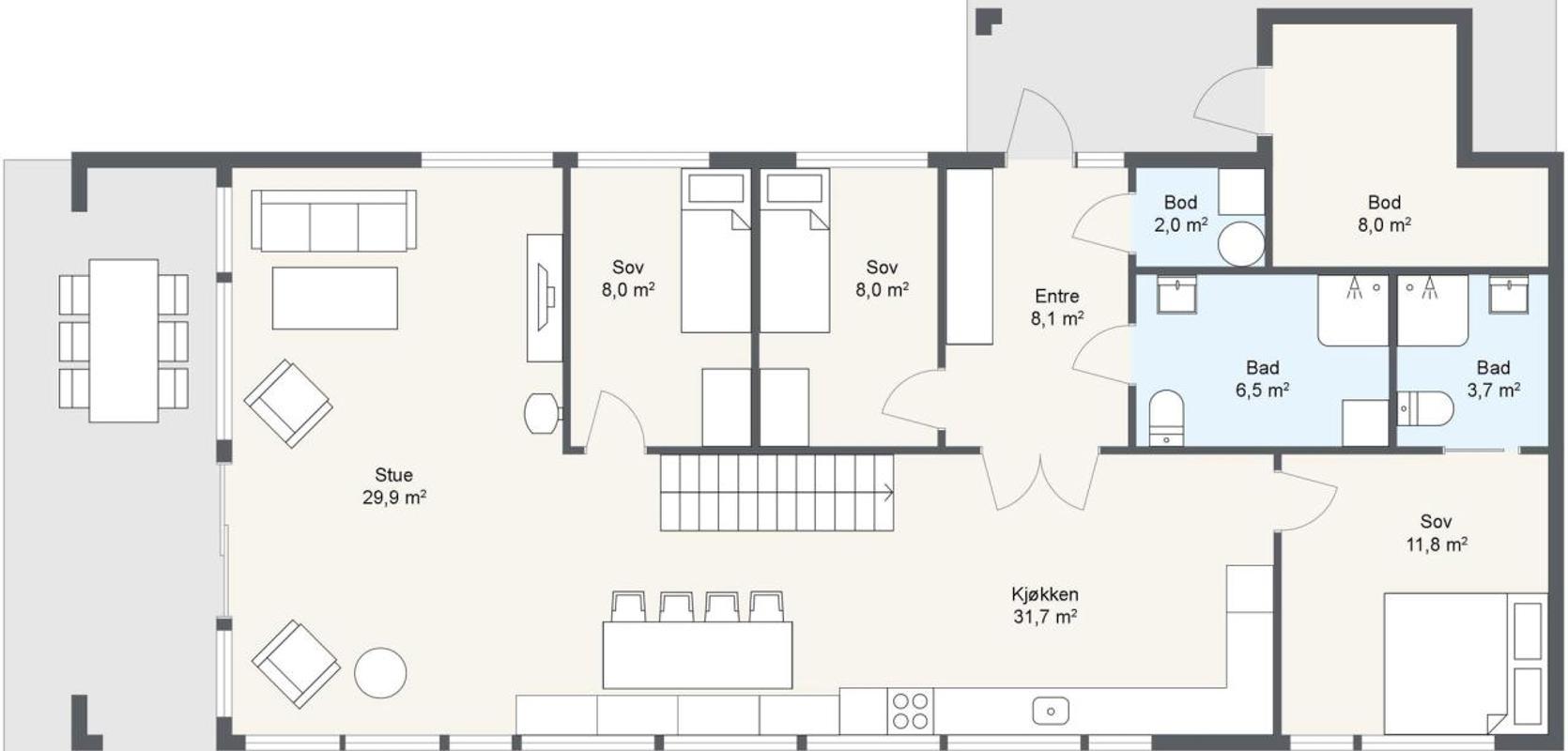
Du blir ønsket velkommen av et godt overbygd inngangsparti. Her finner du også inngangen til en romslig utebod som har tilstrekkelig plass til oppbevaring av ved, sportsutstyr som ski, sykler og pulker, samt alt annet du måtte trenge på hytta. Vindfanget i hytta gir nok plass til garderobeskap og gir adgang til et eget vaskerom/teknisk rom. Det største badet og ett av soverommene kan nås fra inngangspartiet, og er på denne måten skjermet fra oppholdsrommet.

Oppholdsrom med sosiale soner og overbygd terrasse

Gjennom de doble dørene fra vindfanget, kommer du inn i et romslig fellesområde som har god plass for hele familien og gjestene dine. Kjøkkenet defineres som egen sone ved nedsenket himling. Langveggen gir rom for innredning til kjøkken og sitteplasser. Vinduer i benkehøyde langs denne veggen gir god utsikt og godt med lysinnslipp. Kjøkkenet har rikelig med benkeplass langs veggen.

Rommet åpner seg så opp i gavlen med mønt himling opp mot drager i møne. Takhøyden gir en luftig og åpen følelse i rommet. Store vinduer fra gulv til tak gir godt med lys og slipper naturen inn. Peisen som er plassert i midten av stuedelen kan nytes fra hele dette området i hytta.

Skyvedører fra fellesområdet fører deg ut til en terrasse som er beskyttet under et takoverbygg. Dette utgjør en flott forlengelse av stue- og spisestueområdet.

Bestill hyttekatalog

Skråtak med mønt himling gir ekstra takhøyde og en luftig følelse

De to mindre soverommene i hytta har skråtak med mønt himling, som gir ekstra takhøyde og rom for ekstra køyesenger. Hovedsoverommet har en egen inngang fra kjøkkenet og er skjermet fra resten av hytta, i tillegg til å ha sitt eget bad.

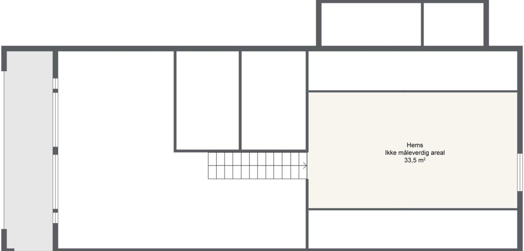
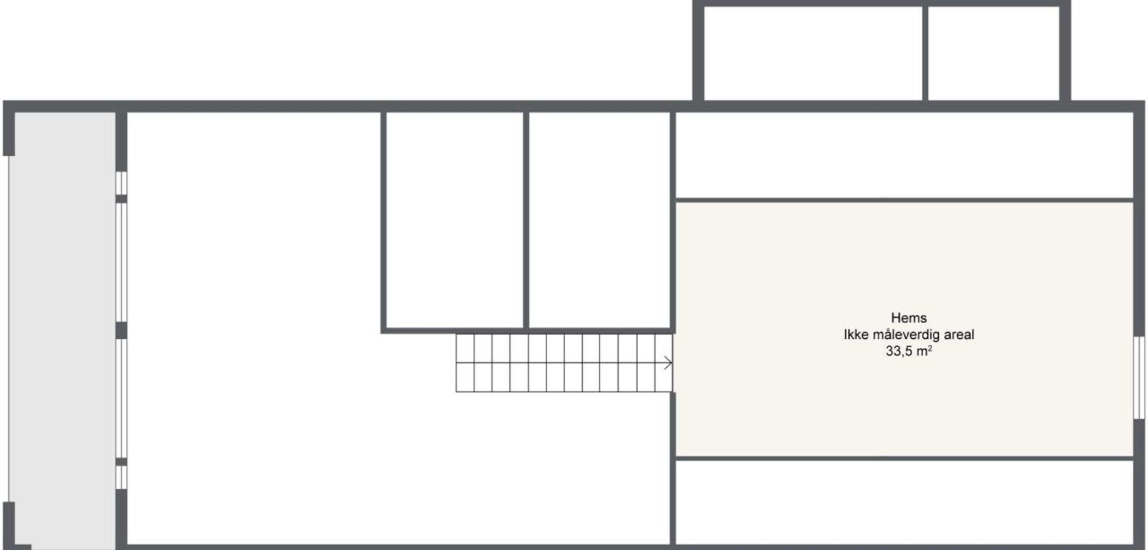
Trappen opp til hemsen har gode stigningsmål med inntrinn og opptrinn som gir ledig plass til enten et ekstra oppholdssted eller som lagring under trappen.

Hemsen har flere bruksområder, og rommet kan fungere som ekstra soveplass, TV-stue eller et sted å trekke seg tilbake. Hemsen i Trysil 1 er litt lavere enn i Trysil 2, og dette gir en lavere mønehøyde for å imøtekomme reguleringskravene i enkelte områder.

Fjellhytte, skogshytte eller sjøhytte

Trysil-hyttene er allsidige og passer inn i ulike naturskjønne omgivelser. Disse hyttene er designet med tanke på deres plassering i fjellandskap, skogkledde landskap eller i en lomme mellom svabergene ved sjøen.

* Alle bilder og illustrasjoner er til inspirasjon og kan avvike fra endelige tegninger.

Ta kontakt med forhandlet
}