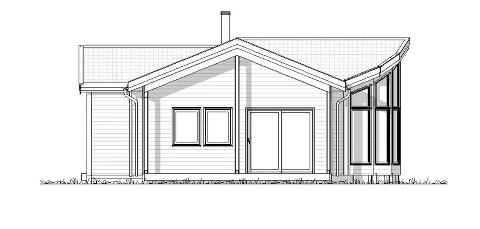
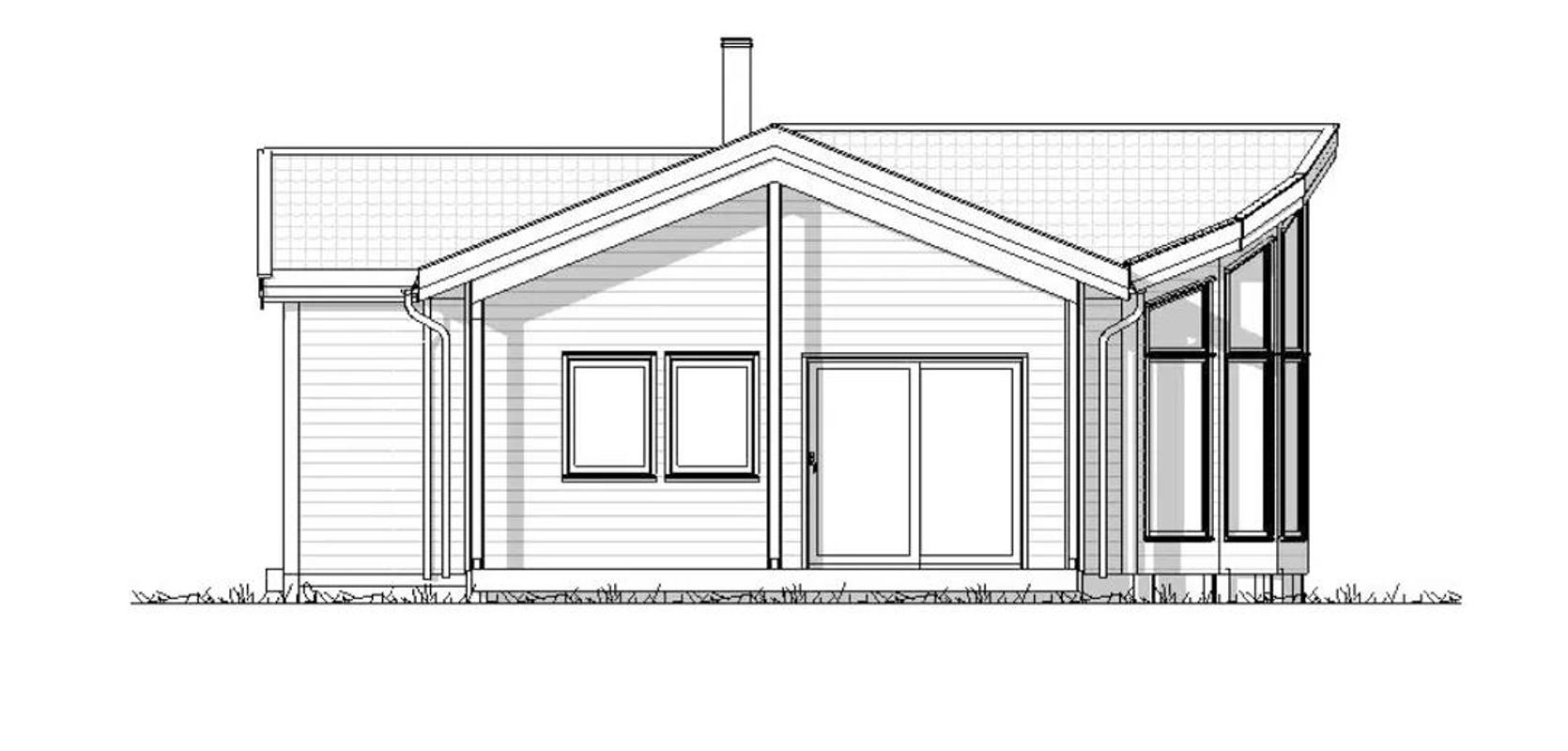
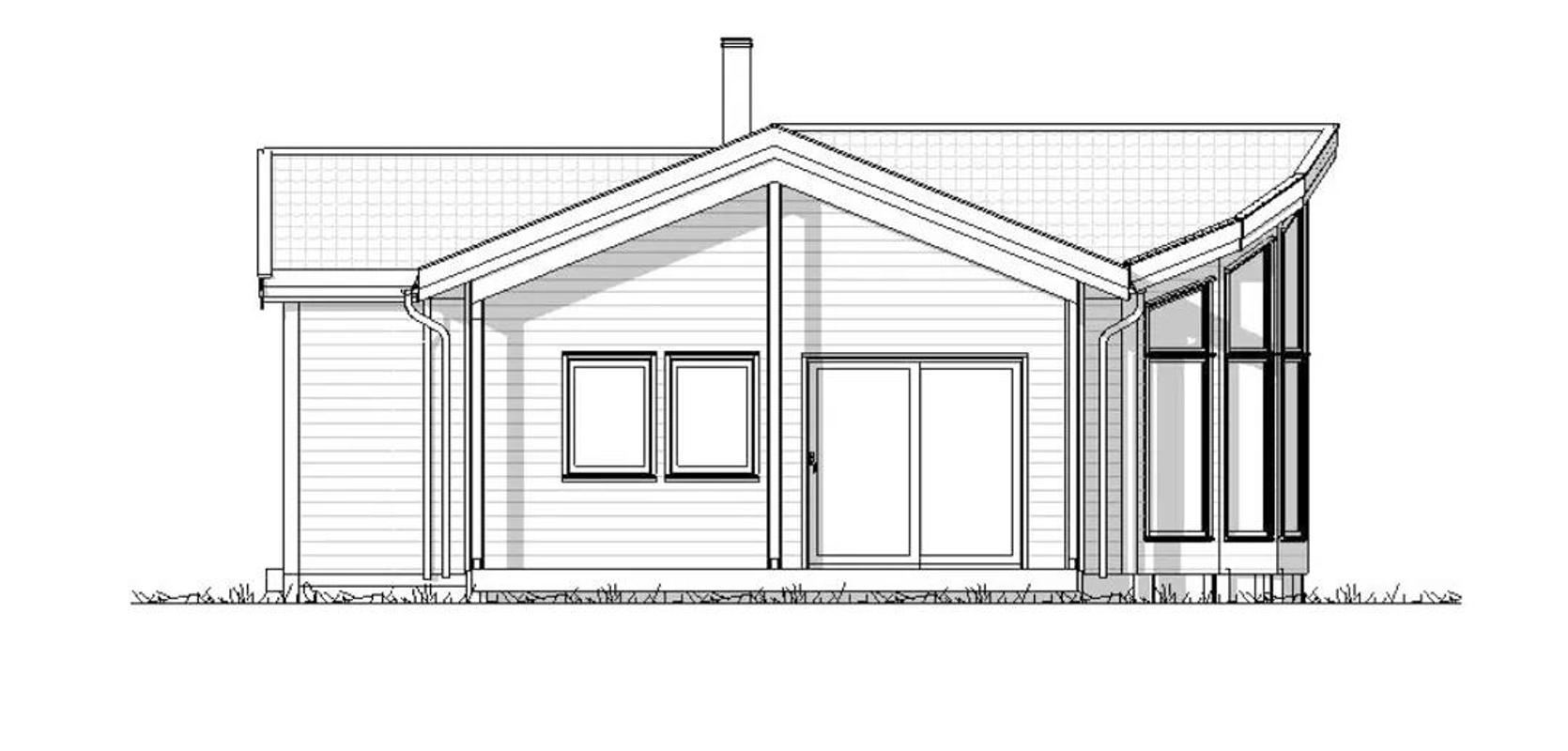
Hytte Panorama

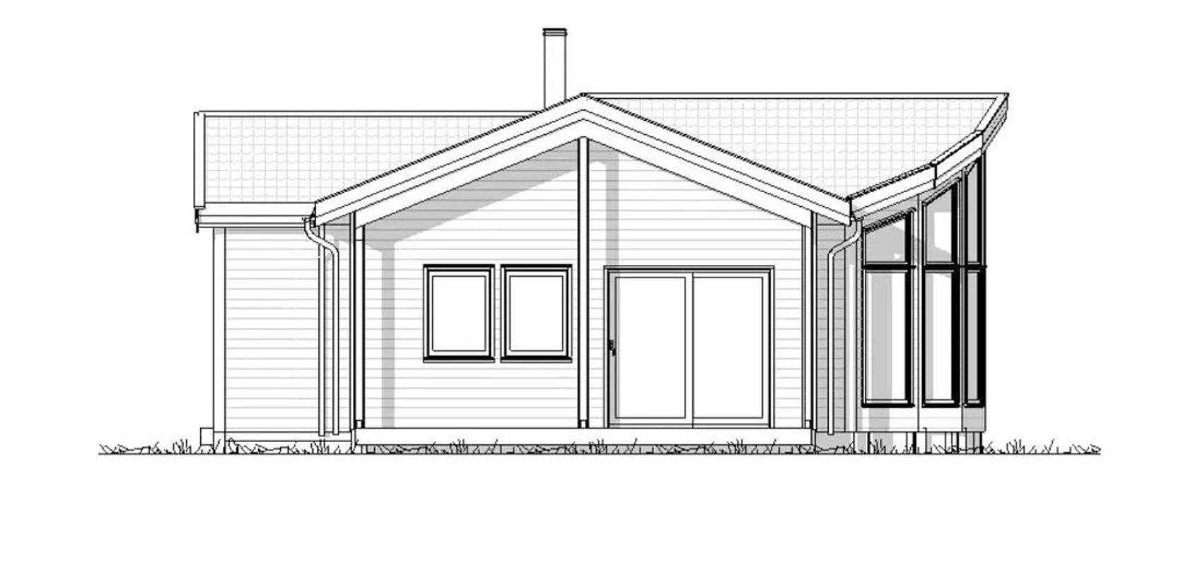
Med Panorama får du en hytte som skiller seg ut! Den spesielle tak- og vindusløsningen i stuedelen gir Panorama en karakteristisk særpreg. De store vinduene i front gir deg muligheten til å nyte panoramautsikten og bringer rikelig med naturlig lys inn i stuen.

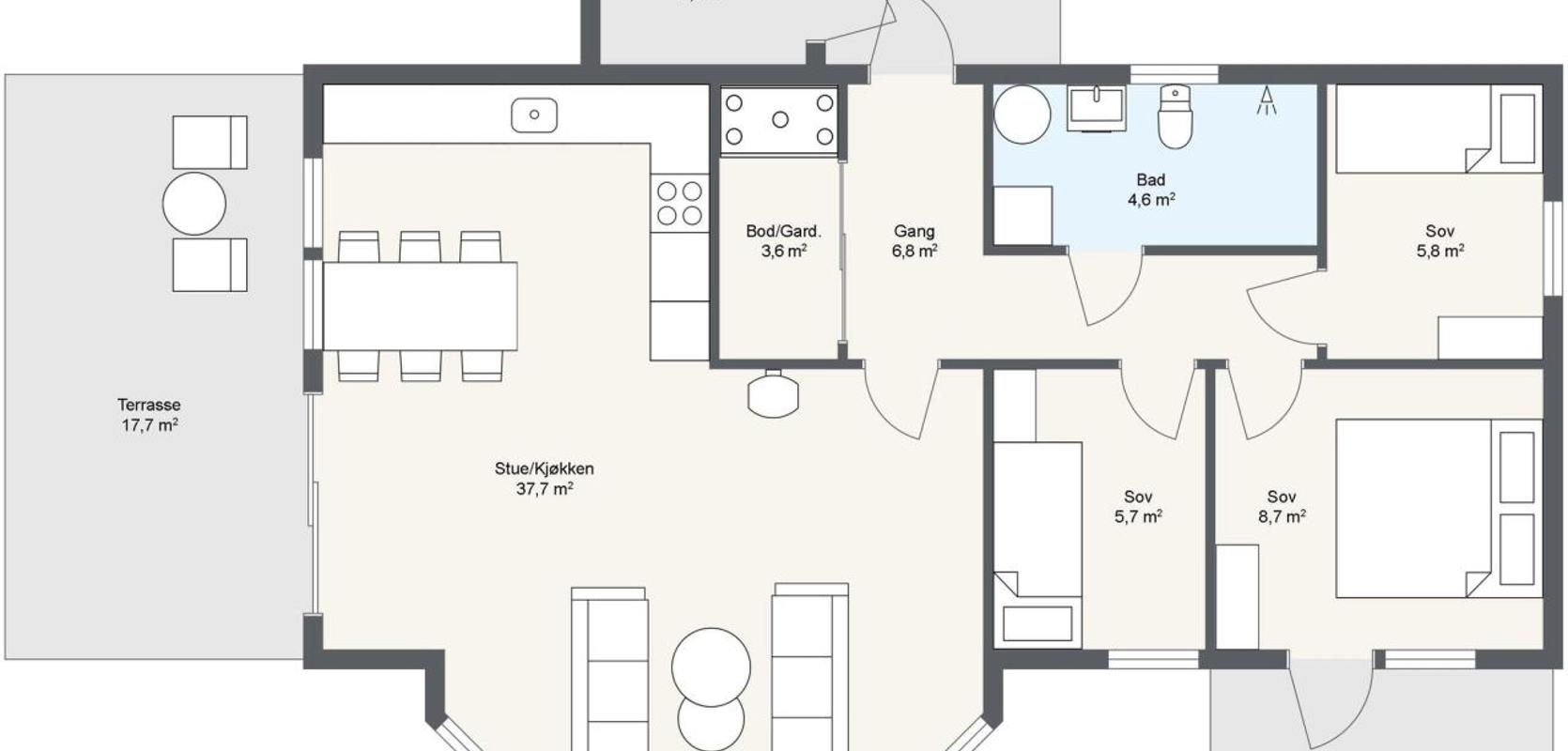
  • BRA 90,1
  • P-rom
  • 3

Hytte med mye lysinnslipp og utsikt

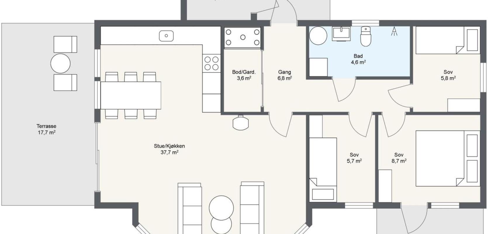
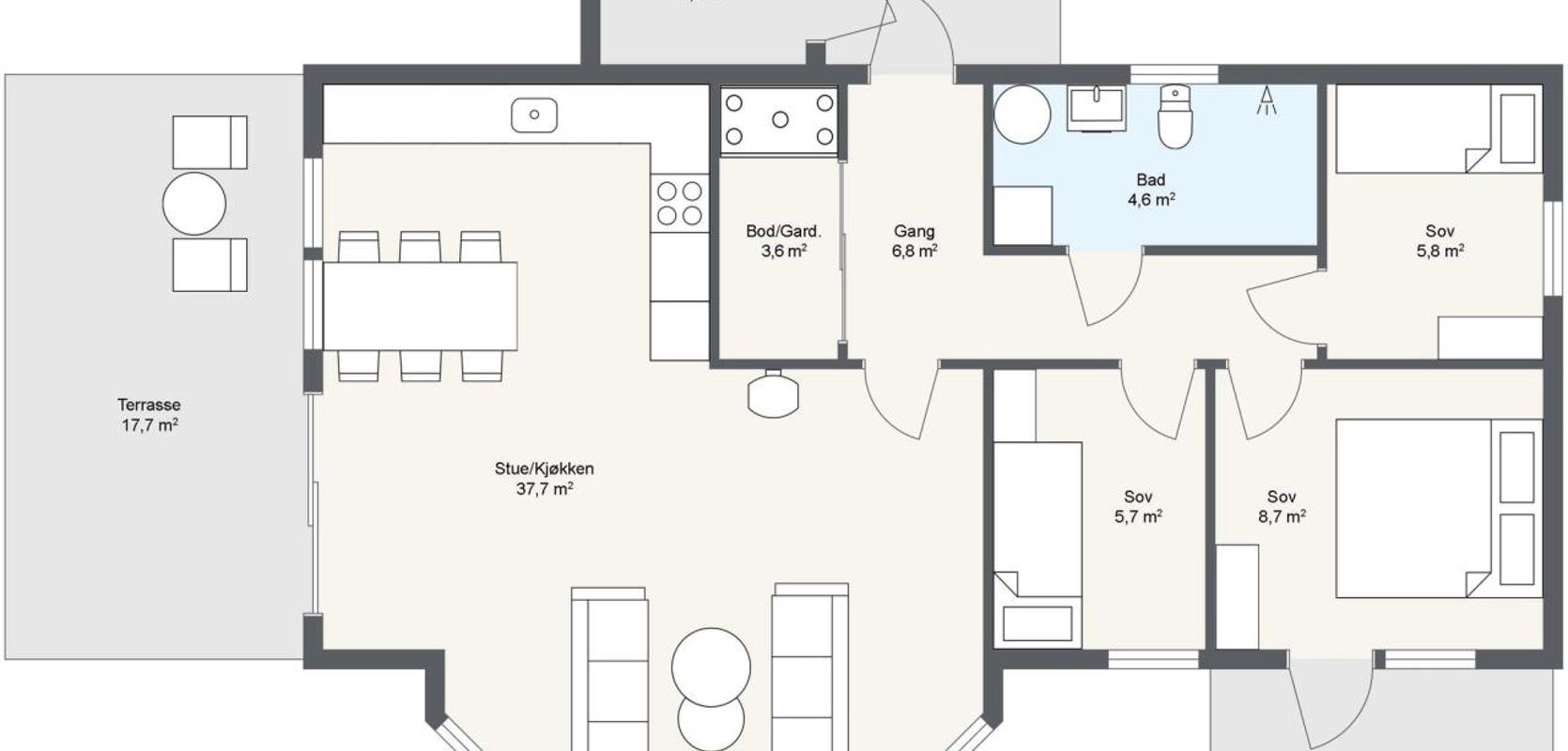
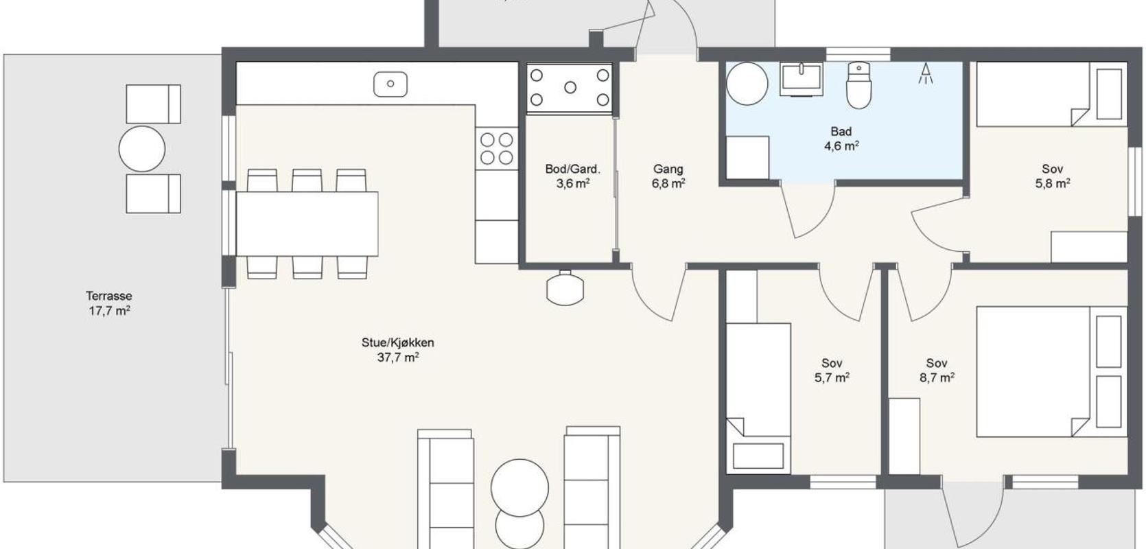
Hytta har et bruksareal på 90 m² og er ideell for familier. Med Panorama får du en hytte som virkelig skiller seg ut. Det spesielle tak- og vindusdesignet i stuedelen gir Panorama en unik karakter. De store vinduene i front gjør det enkelt å glede seg over utsikten samtidig som de sørger for rikelig med naturlig lys i stuen.

Gode sosiale soner i oppholdsrommet

Første etasjen har en romslig åpen stue- og kjøkkenløsning. Oppholdsrommet har god plass til et koselig spisebord hvor du kan nyte måltider med familien. Det er også mye lagringsplass i det romslige kjøkkenet. Det kommer godt med og bidrar til å holde hytta ryddig. Midt i rommet finner du den perfekte plassen for en sofagruppe hvor du kan slappe av med familien, enten det er for å spille brettspill eller lese en god bok.

Bestill hyttekatalog

Nærheten til naturen

Allrommet gir deg også direkte tilgang til utendørsområdet, noe som er svært praktisk for de vakre dagene da du ønsker å nyte naturen. Det gjør det enkelt å hente seg en kopp kaffe eller mat når man sitter utenfor hytta og slapper av.

Godt med sengeplass og praktiske løsninger

Etasjen inneholder også et romslig bad med plass til vaskemaskin. Hytta har en praktisk bod med egen inngang utenfra, perfekt for lagring av fritidsutstyr eller gjenstander som ikke brukes daglig. Hytta har tre komfortable soverom. Her kan man velge å ha familiesenger slik at man kan ha ekstra plass til gjester. Ett av soverommene har også rikelig med lagringsplass og en egen utgang til naturen. En stor fordel er at alt er tilgjengelig på ett plan.

* Alle bilder og illustrasjoner er til inspirasjon og kan avvike fra endelige tegninger.

Ta kontakt med forhandlet
}