Silje - vakkert hus i klassisk stil

Mesterhus Silje er det perfekte valget for de som ønsker et tradisjonelt hus med moderne funksjoner. Dette vakre huset er enkel og symmetrisk i uttrykket, og passer perfekt til en småbarnsfamilie.

  • BRA 145,4 m²
  • P-rom
  • 4

Med sine fire soverom og praktiske planløsning er dette en perfekt bolig for en småbarnsfamilie. Og med alle hovedfunksjoner på ett plan, kan dette være din familiebolig for livet.

Oppholdsrommet er lyst og åpent, og delt inn i soner som gjør det praktisk for både avslapning og bespisning. Du vil elske å tilbringe tid i dette rommet, med massevis av naturlig lys som strømmer inn gjennom de store vinduene. Terrassen utenfor er også en sjarmerende plass hvor du kan nyte sommerkvelder med familie og venner.

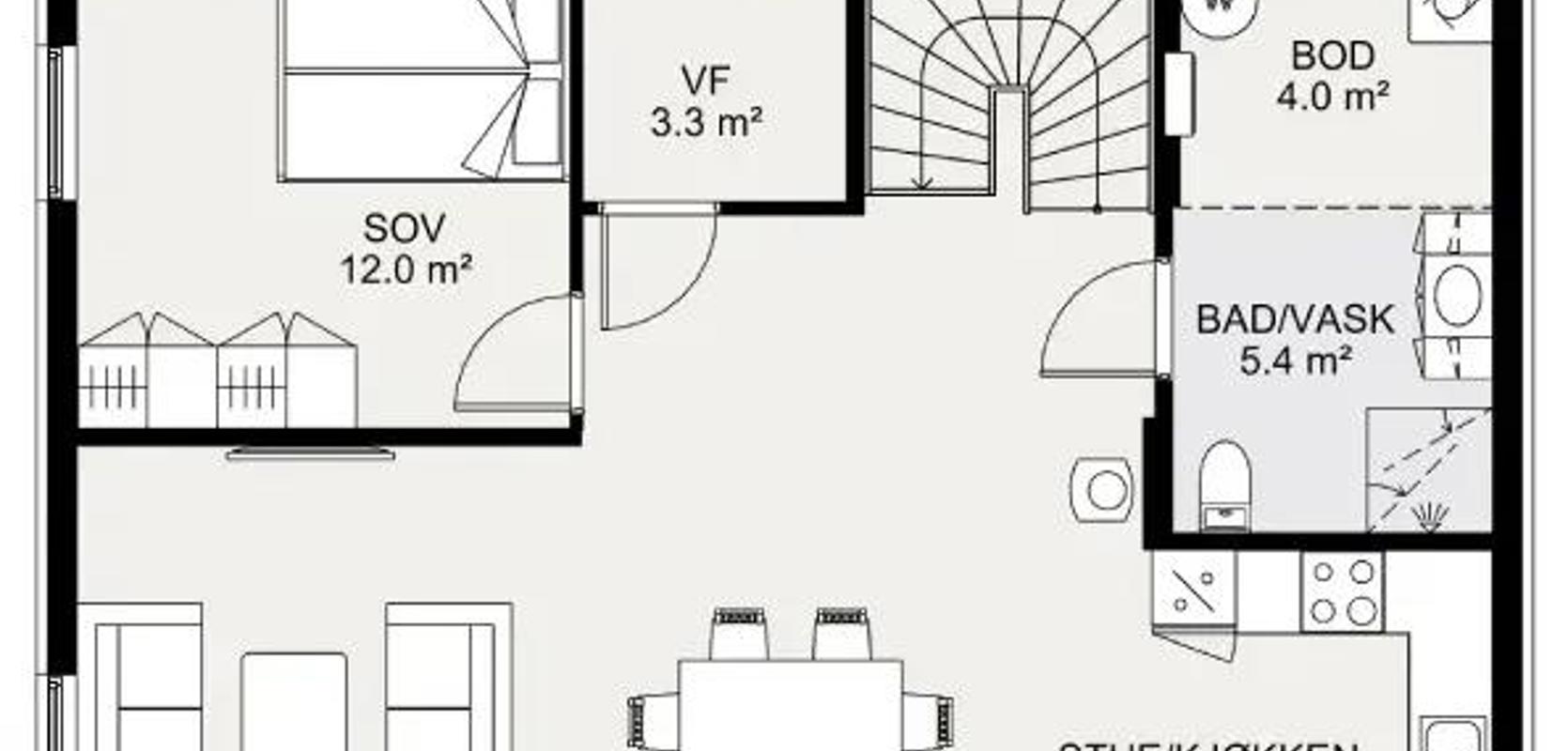
I andre etasje finner du tre romslige soverom, eget bad og en loftstue som kan brukes som en ekstra stue. Med en egen balkong tilknyttet loftstuen, kan du nyte den fantastiske utsikten over hagen og området rundt huset.

Mesterhus Silje er spesielt tilpasset en flat tomt, og ivaretar den klassiske stilen du kanskje alltid har drømt om. Så hvorfor ikke bygge ditt drømmehus i dag?

Bestill katalog